地址:上海市浦東新區(qū)新金橋路1888號40幢
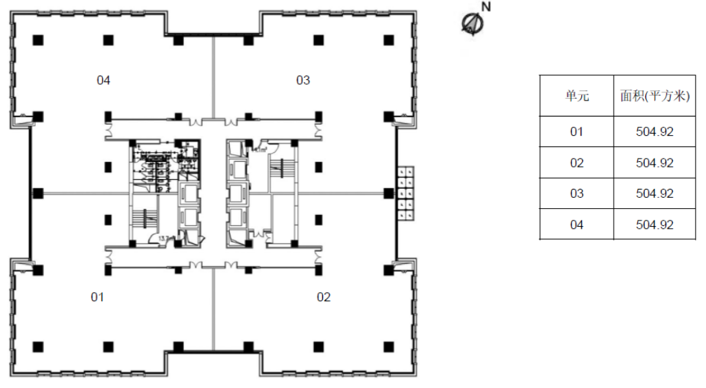
【 面 積 】:504㎡
【交 付 】:標準交付(架空地板、吊頂、白墻)
【 空 調】:大金吸頂分體空調
【 得 房 率 】:70%
【 付 款 】:押三付一
【交 通 】:金領之都距離9號線金吉路站步行10分鐘
【 車 位 】:停車費400元/月
【物 業(yè) 費】:辦公16元/平/月;商業(yè)19元/平/月
【樓宇總高】:12層
【層 高】:1層:4.8米,2-3層2.7米凈高,4-12層: 2.6米凈高
【承 重】:350KG/平方米
【配 電】:120瓦/平







